7695A Three Notch RoadLouisa, VA 23093
Due to the health concerns created by Coronavirus we are offering personal 1-1 online video walkthough tours where possible.


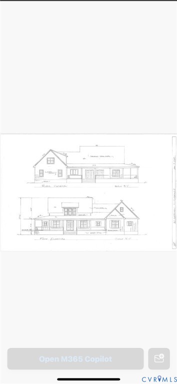
Brand-New Construction by BT Construction Company Inc. Currently underway, this custom-built residence offers the unique opportunity to secure your home early and personalize the finishing touches to your style. This 4371 sq. ft. property features: 4 bedrooms, 3.5 bathrooms 22 private acres with a serene pond and picturesque mountain views An attached 2-car garage A whole-house Generac generator for peace of mind Conditioned crawl space for energy efficiency and durability Stylish black hardware and fixtures Granite countertops and stainless steel appliances included Estimated completion: March 2026. For more details or to schedule a private tour, call or text anytime.
| 2 months ago | Listing first seen on site | |
| 2 months ago | Listing updated with changes from the MLS® |
Last checked 2025-10-24 10:56 AM UTC.


Did you know? You can invite friends and family to your search. They can join your search, rate and discuss listings with you.